Met de vergrijzing en het nijpend tekort aan gespecialiseerd zorgpersoneel staat zorgverlener Groenhuijsen voor een uitdagende opgave: hoe ga je de organisatie en het vastgoed fit maken voor de toekomst. Het woon-zorgcentrum “De Brink” in Roosendaal wordt hierin een sleutelproject.
De Brink wordt een nieuw thuis voor 216 bewoners met dementie en een intensieve zorgvraag. Samen met Groenhuijsen heeft CB5 een uitvoerig traject doorlopen om het programma vast te stellen en het ontwerp te maken voor de nieuwbouw waarin de bewoner en de zorgverlener centraal staan. Het uitgangspunt van het woon-zorgcomplex is het creëren van een sterke woonkwaliteit, passend bij de maat en schaal van de wijk en de belevingswereld van de bewoners. Dit in balans met een gebouw dat zorgprocessen optimaliseert en een aantrekkelijke werkomgeving realiseert voor het zorgpersoneel.
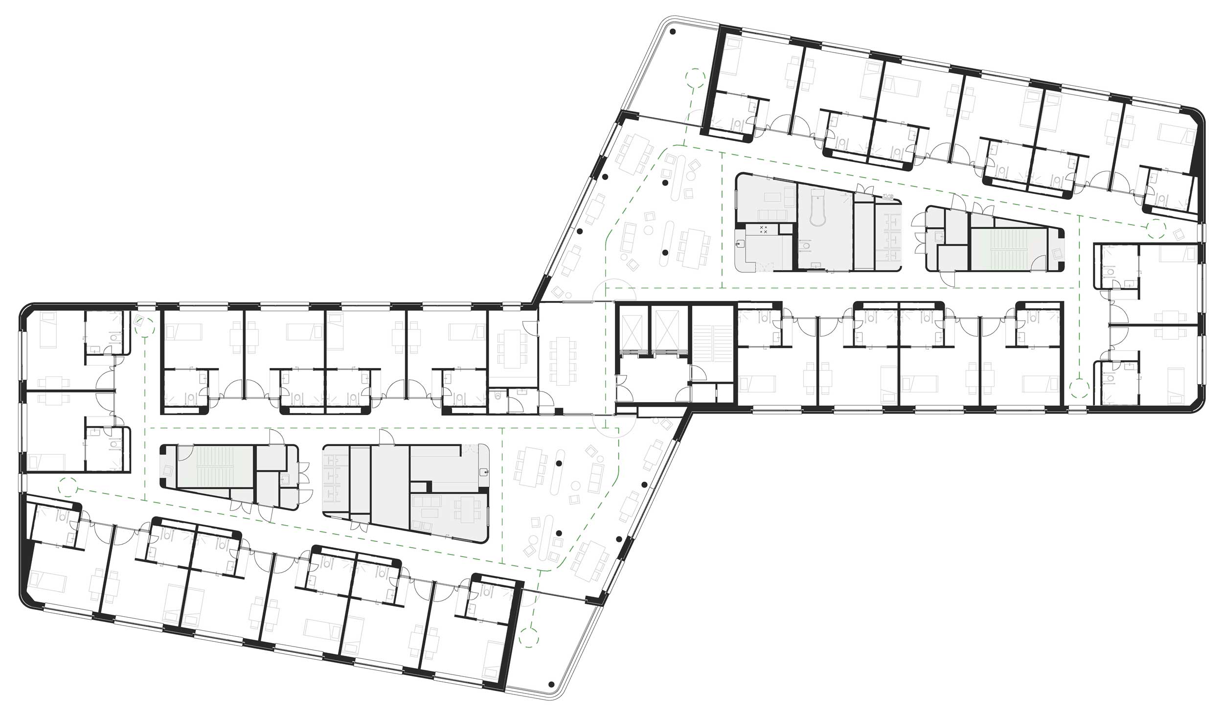
Woonomgeving met eigen regie
In De Brink staat de bewegingsvrijheid en eigen regie van bewoners centraal, met zorg op de achtergrond. Bewoners beschikken over een eigen kamer waar ze zich kunnen terugtrekken, terwijl de gemeenschappelijke woonkamer uitnodigt tot ontmoeting en samenzijn. De compacte woongroepen zijn ontworpen met een dubbele corridor, voorzien van zitplekken en zichtpunten naar buiten. Deze opzet stimuleert spontane beweging en voorziet in een steeds wisselende connectie met de omgeving. Het zorgvuldig gekozen kleur- en materiaalgebruik draagt bij aan een gevoel van rust, herkenning en comfort.
Vanuit de woongroep kan de bewoner zich vrij bewegen naar de gemeenschappelijke ruimtes op de begane grond. Van hieruit is de bewoner direct in de natuur van de naastgelegen tuin en het aangrenzende park of de dynamiek en voorzieningen van de wijk.
Een gestroomlijnde en veilige werkomgeving
Naast een woonomgeving is De Brink ook een werkomgeving waarin personeel op een comfortabele en veilige manier zorg kan verlenen. Er is geïnvesteerd in het realiseren van een functionele en doordachte indeling die het dagelijkse werk ondersteunt en de fysieke belasting van medewerkers vermindert. Door de zorg- en facilitaire functies zorgvuldig te positioneren, ontstaan korte en logische looplijnen en is er goed overzicht. Dit draagt bij aan efficiënte werkprocessen en maakt adequaat toezicht eenvoudiger.
4 volumes verbonden met de wijk
Met de nieuwbouw wordt een maat geïntroduceerd die aanzienlijk kleiner is dan het vorige woon‑zorgcomplex op deze locatie. De nieuwe Brink bestaat uit vier volumes in wisselende hoogtes en gevelafwerking. Door de geometrie en onderlinge positionering van de volumes opent het gebouw zich richting de wijk, het park en de tuin en ontstaan groene tussenruimtes. De volumes zijn onderling verbonden door een eenlaagse plint. Deze plint is transparant en huist de entrees en gemeenschappelijke functies.
Programma: Woon-zorgcentrum, 216 bewoners
Opdrachtgever: Groenhuysen
Locatie: Roosendaal
Periode: 2020-heden
Status: In uitvoering
Discipline: Architectuur
Samenwerking: Studio BDI (interieur)







